不動産のTakakan スタッフによるブログです。
| × [PR]上記の広告は3ヶ月以上新規記事投稿のないブログに表示されています。新しい記事を書く事で広告が消えます。 こんにちは。 ■1月9日 今日はとんちの日とんちで有名な一休さん(一休宗純)から、「いっ(1)きゅう(9)」の語呂合せ。 PR
Takakanの一條です。
今日は午前中お天気がよ く、町庭坂の売土地に看板をつけてきました.いい汗をかいてきました。 ![]() 庭坂駅の北側の住宅地の中にあります。 南西の角地で、6m道路です。 詳細はこちらをご覧ください↓ http://www.takakan.co.jp/baibai/syousai/0/4050dat.html 物件コード17392についてとお問い合わせください。 ☆ 福島市の不動産・賃貸情報 Takakan ☆ 今日は何の日 ボウリングの日 1861年の6月22日に、日本で初めてのボウリング場が長崎の 外国人居留地内に開場したと、日本初の英字新聞「ザ・ナガサキ ・ショッピング・リスト・アンド・アドバタイザー」紙に報じられたことを記念し、 日本ボウリング場協会が1972年(昭和47年)より、記念行事を行っている。
Takakanの一條です・・・今日は暑いですね。
![]() 東京・練馬では30℃ を記録したようです。外で作業なされている方、ご苦労様です。 熱中症には十分にお気を付け下さい。 ![]() また近畿など西日本は梅雨入りしましたね。 福島市の梅雨入りも間近でしょうね。 ![]() でもあじさいの映える季節でもありますよね。 さて、今日は、もうすぐペット飼育可能物件に空きが出ますので、 ご紹介させていただきます。 東浜町の4世帯が入居出来る賃貸物件です。 ![]() 2LDK(LDK13.5、和室6、洋室6)の間取です。 駐車場は 2台 まで駐車可能。キッチンは対面式のシステムキッチンとなっています。 ペットは、小型犬 又は猫 に限ります。 もOK。詳しくは、こちらから ![]() http://www.takakan.co.jp/bukken/syousai/0/3690ssi.html ご不明な点はお問い合わせください。 ☆ 福島市の不動産・賃貸情報 Takakan ☆ 今日は何の日? ■ 大鳴門橋開通記念日 1985年のこの日に大鳴門橋が開通したことを記念。
こんにちは。
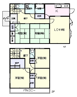
![]() 先日に続いて、新規物件のご紹介です。 ![]() 今日は、福島市八木田の売家の情報です。 ![]() 建物 41.63坪 5LDK 1,650万円 です。 S63.9月築 駐車場2台、(1台カーポート付) 北西角地 パナホーム施工 2階建 間取は1FにLDK、和室6帖、和室8帖 2Fに洋室8帖、洋室6帖、洋室6帖 ゆったりとお過ごしいただける間取です。 是非、ご内覧ください。 詳しくは、http://www.takakan.co.jp/baibai/syousai/0/3761dat.html 内覧いただけますので、ご希望に方は、お気軽にお問い合わせください。 物件番号 43384 八木田の1,650万円の物件とお伝えください。 フリーダイヤル 0120-528-021 までどうぞ!よろしくおねがいいたします。 ![]() ☆ 福島市の不動産・賃貸情報 Takakan ☆ 今日は何の日? ■ タバコの日 1946年1月13日に高級タバコの「ピース」が10本入り7円で初めて 発売されたことに由来。
こんにちは。
![]() 今日は新規(新築)賃貸物件をご紹介します。 ハイツ東舞子Ⅱです。 福島市東浜町に建築中で3月に完成します。 ![]() 入居は3/20~から可能となります。 現在、大工さんに頑張って 頂いています。 ・![]() 間取はどのお部屋も同じで2DKになります。 DK7、洋6、洋6です。 賃料 48,000円/月 駐車場1台込 共益費 1,000円/月 敷金 1ヶ月 駐車場2台目3,000円/月 詳しくは、http://www.takakan.co.jp/bukken/syousai/0/3574ssi.html 一人暮らし、又はお二人で住まれるには最高ですよ。 ![]() ☆ 福島市の不動産・賃貸情報 Takakan ☆ 今日は何の日? ■ スキーの日 1911年1月12日にオーストリア陸軍のレルヒ少佐が、新潟県高田 (現在の上越市)の陸軍高田歩兵第58連隊の青年将校に、日本で 初めてスキーの指導を行なったことから。 スポーツ用品メーカー・ミズノの直営店・エスポートミズノが1994年に制定。 忍者ブログ [PR]
|
く、町庭坂の売土地に看板をつけてきました.




2台
まで駐車可能。
又は猫
に限ります。
もOK。



フリーダイヤル 0120-528-021 までどうぞ!
・
